Санкт-Петербург, г. Красное Село, ул. Огородная д. 18, офис №309

Санкт-Петербург, г. Красное Село, ул. Огородная д. 18, офис №309

Санкт-Петербург +7 (812) 389-31-05

Москва +7 (495) 134-26-30

Консультации, прием заявок на расчет по телефону и почте

пн-пт с 9.00 до 18.00

Быстрый калькулятор
МЕНЮ
МЕНЮ
Главная > Готовые планировки >

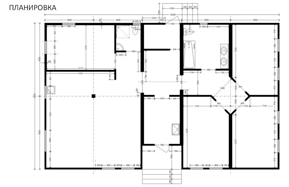
Модульное бытовое здание с санузлами

Модульное бытовое здание с санузлами

Основная информация

Смотреть все планировки >>>

Основная информация

ВАШИ ВОПРОСЫ И ЗАЯВКИ

на расчет проекта направляйте нашим менеджерам:

на почту

info@zavodmz.ru

через сайт

НАПИСАТЬ

онлайн-консультанту

НАПИСАТЬ