Санкт-Петербург, г. Красное Село, ул. Огородная д. 18, офис №309

Санкт-Петербург, г. Красное Село, ул. Огородная д. 18, офис №309

Санкт-Петербург +7 (812) 389-31-05

Москва +7 (495) 134-26-30

Консультации, прием заявок на расчет по телефону и почте

пн-пт с 9.00 до 18.00

Быстрый калькулятор
МЕНЮ
МЕНЮ
Главная > Каталог > МОДУЛЬНЫЕ ДОМА >

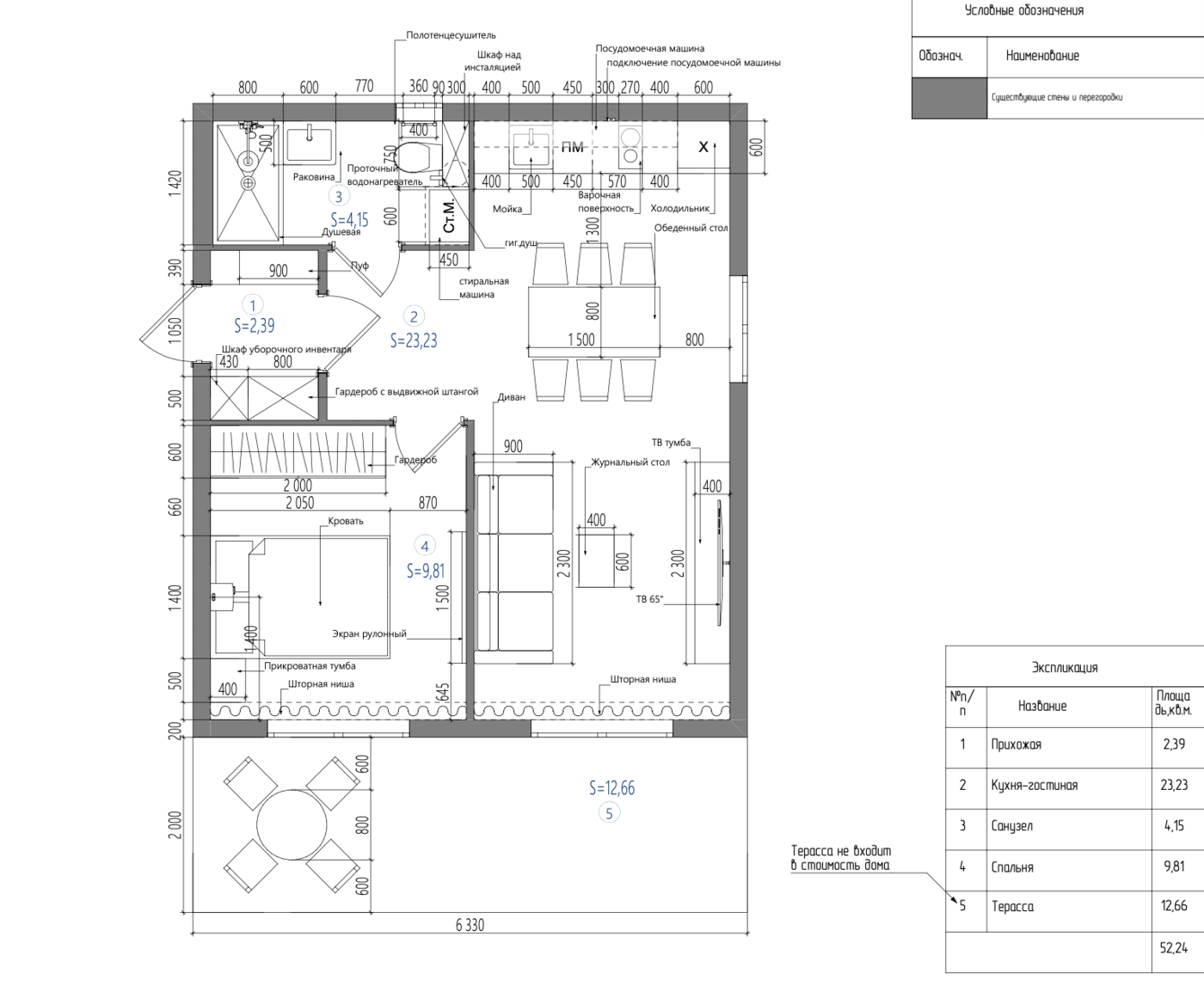
Модульный дом 40 м2

Модульный дом 40 м2

Размер дома: 6,92 * 6,33 м

Площадь застройки: 44 м2
Дом собирается из трех типовых модулей.

Планировка:

  • Кухня-гостиная - 23,23 м2
  • Прихожая - 2,39 м2
  • Санузел - 4,15 м2
  • Спальня - 9,81 м2

 

 

Конструкция модульного дома:

Конструкция пола: оцинкованный лист 1мм., утепление 200 мм в обрешетке из антисептированной 40х150, внутренний каркас основания - труба 80х40х3, пароизоляция SW – ветро-влагозащитная, пароизоляция изостронг (тип А), чистовое покрытие. 

Конструкция стен: внутренняя отделка фанера масло, металлокаркас, сэндвич-панель 150 мм, навесной фасад - вертикальный планкен.

Конструкция кровли: многослойное покрытие кровли из линокрома 4мм с крошкой, направленном на линокром 3мм с мембранной гидроизоляцией по плитам OSB-3, 22мм, несущий каркас кровли из труб 80х40х3, противопожарный оцинкованный профиль ГКЛ для прокладки элекрокабелей проложен в несущем каркасе кровли с креплением OSB-3, 9мм, утепление кровли 200мм в обрешетке из доски антисептированной 50×200, установленной на плитах OSB-3, 9мм, выровненный на подвесах профиль ГКЛ 40х17 с фанерными планками 15×100 для ровного потолка.

Каркас: основной несущий каркас из труб 40х80х3 с деревянными перемычками из строганой доски для крепления внутренней черновой отделки.

Утепление: пароизоляция SW – ветро-влагозащитная, утепление стен 150мм, пароизоляция изостронг (тип А).


Внутренняя отделка:

Кухня: окрашенная фанера ФСФ, фартук из керамогранита, подвесной потолок, кварцвиниловая плитка.

Прихожая: окрашенная фанера ФСФ, панели МДФ реечные, подвесной потолок, керамогранит.

Гостиная: окрашенная фанера ФСФ, панели МДФ реечные, подвесной потолок, кварцвиниловая плитка.

Спальня: окрашенная фанера ФСФ, панели МДФ реечные, подвесной потолок, кварцвиниловая плитка.

Санузел: керамогранит, подвесной потолок, керамогранит.

Двери: межкомнатные двери – “Текона” Smalta-RIF 202 (белые), входная дверь – “Torex” Роял Техно с терморазрывом.

 

Комплектации:

+ 280 000 ₽ – комплектация санузла (душевая, раковина, унитаз, смесители, зеркало, водонагреватель 80 л., стиральная машина, полотенцесушитель, фильтр для воды)

+ 320 000 ₽ – светильники

+ 1 300 000 ₽ – мебель


Дополнительные опции:

  1. Фундамент
  2. Вентиляция и кондиционирование
  3. Терраса
  4. Печь-камин
  5. Двухскатная кровля
  6. Обшивка цоколя

 


Оставьте заявку — вышлем подробную смету, зафиксируем цену и запустим строительство вашего дома. 

 

ВАШИ ВОПРОСЫ И ЗАЯВКИ

на расчет проекта направляйте нашим менеджерам:

на почту

info@zavodmz.ru

через сайт

НАПИСАТЬ

онлайн-консультанту

НАПИСАТЬ